Торговые павильоны

Компания CSB изготавливает уличные торговые павильоны для розничной и мелкооптовой торговли на базе высококачественных блок контейнеров европейского производства.
Новейшие технологии быстрого строительства позволяют изготовлять торговые павильоны, которые при невысокой стоимости ничем не уступают традиционным торговым зданиям. Модульные павильоны для уличной торговли отличаются ничуть не меньшей степенью надежности и могут эксплуатироваться в течение долгого времени.
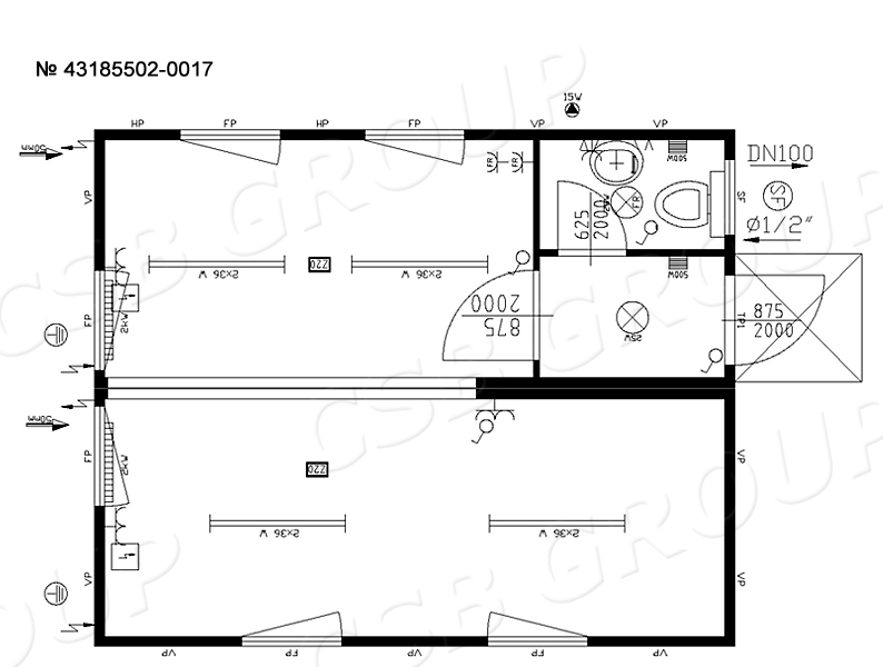
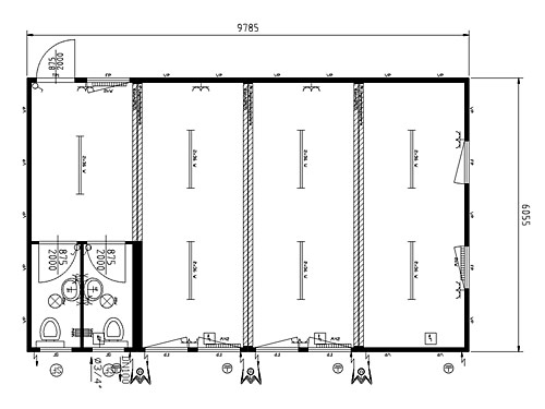
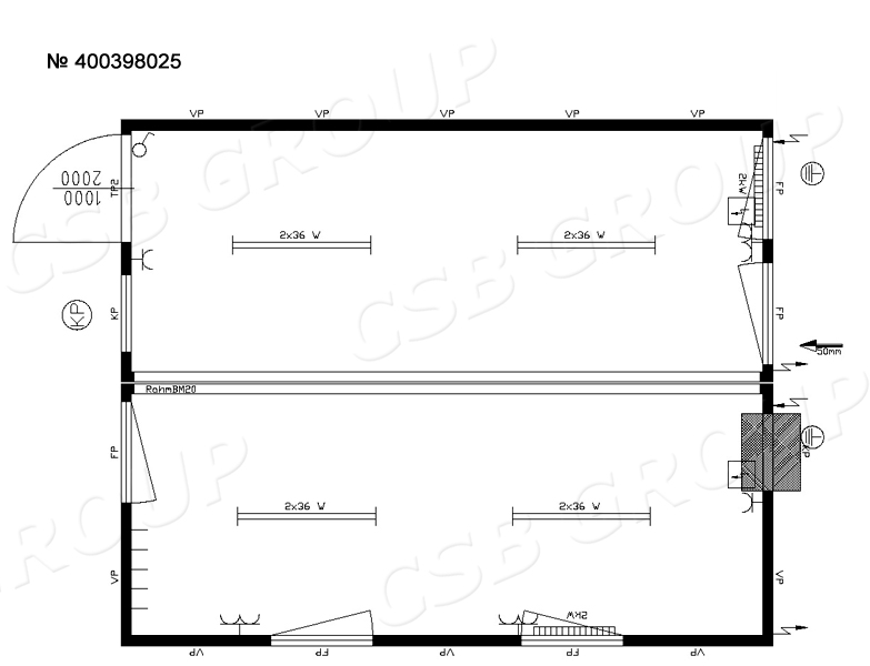
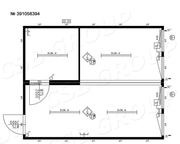
Современный уличный павильон для торговли представляет собой отдельно стоящее модульное здание, имеющее сравнительно небольшие размеры.
Данные торговые павильоны разрабатываются с учётом индивидуальных особенностей рабочего проекта, аспектов технического задания и предпочтений заказчика.
По желанию заказчика модульные павильоны могут комплектоваться различным технологическим оборудованием, системами отопления, канализацией, водопроводом, мебелью.
Наши Преимущества:
Доставка
Монтаж торгового павильона
Лизинг
Торговые павильоны, коммерческие здания и супермаркеты от компании CSB имеют современный внешний вид, долговечны, экономичны и это при невысокой, в сравнении с капитальным строительством, стоимости.
Торговые павильоны имеют внутреннюю планировку, которую также определяет заказчик по своему усмотрению.
Монтаж модульных быстровозводимых торговых павильонов может производится при минимальном уровне технических навыков.













Широкая сфера применения