Административные модульные здания

Группа Компаний CSB предлагает Вам административные здания модульного типа, изготовленные и смонтированные на базе высококачественных блок-контейнеров.
Специалисты нашей компании поможут Вам в разработке проекта модульного административного здания любой сложности и назначения, будь то школа, больница или же офис крупной компании, так же Вы можете воспользоваться уже готовыми проектами.
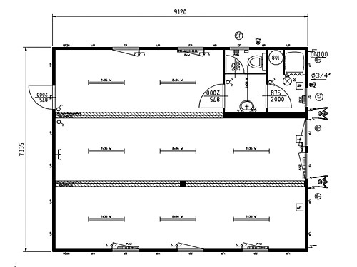
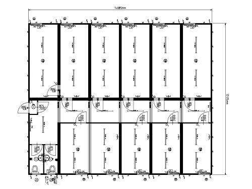
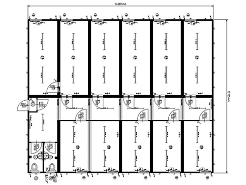
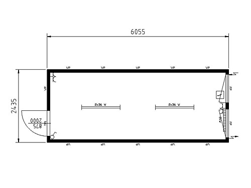
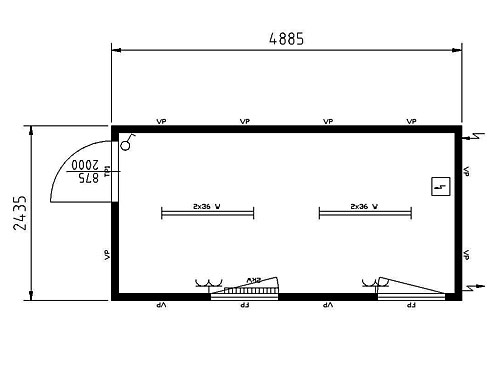
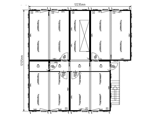
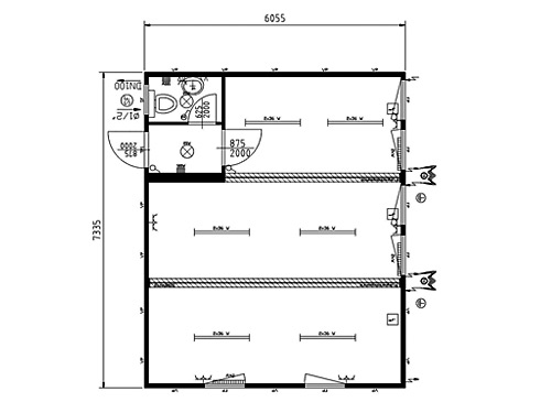
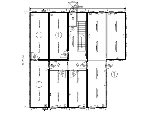
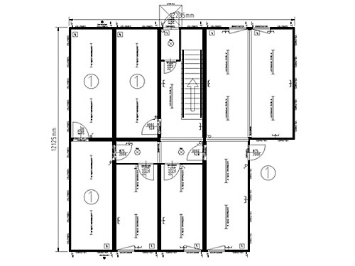
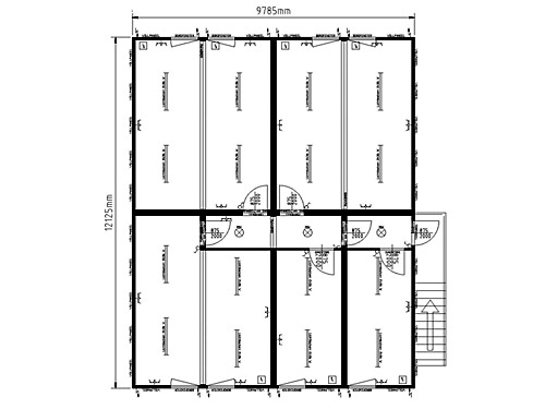
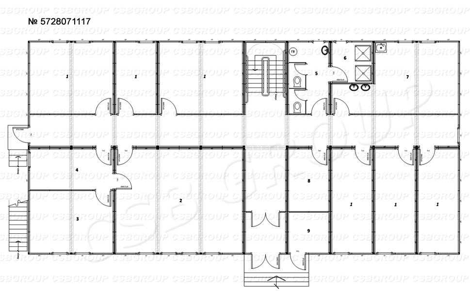
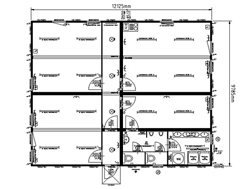
Модульные административные здания контейнерного типа на базе блок-контейнеров многофункциональны.
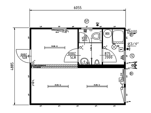
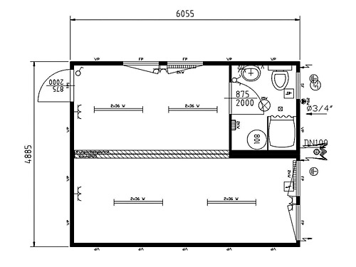
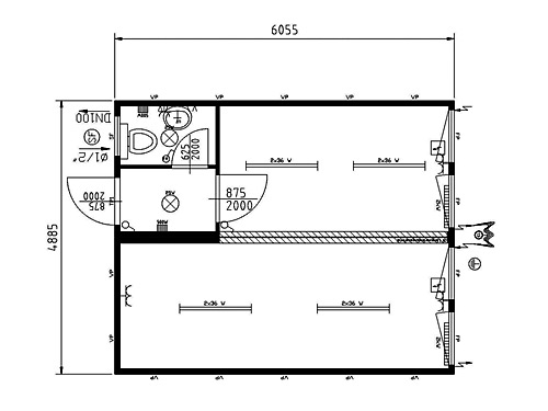
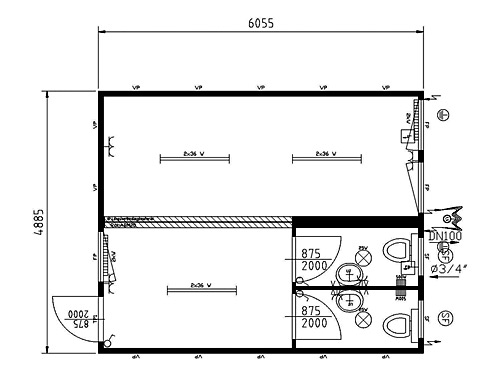
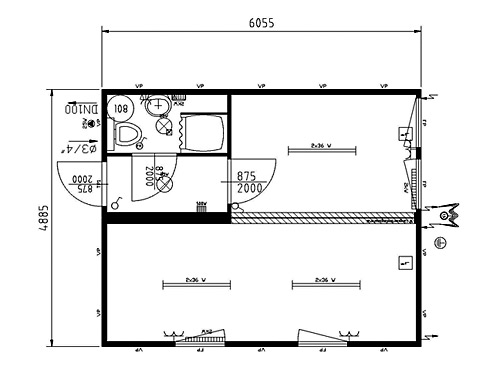
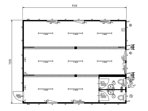
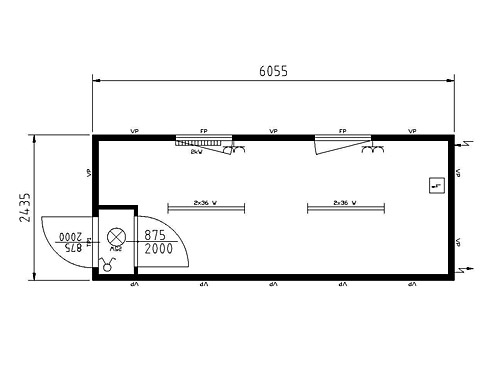
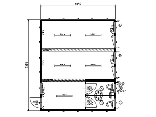
Административное здание может включать в себя офисные и санитарные комнаты, пищеблоки, склады, раздевалки, сушилки, вспомогательные помещения. Все это легко осуществимо в кратчайшие сроки при использовании блок-контейнеров.
На этапе разработки проекта наша компания учитывает все особенности эксплуатации сооружения по требованию Заказчика. Для возведения и отделки зданий используются только высококачественные, сертифицированные и безопасные материалы.
При этом, по окончанию работ, все модульные здания легко можно перебазировать на другой участок, так как на ряду со многими преимуществами современных металлических блок-контейнеров над простыми контейнерами их отличительной чертой является экономная транспортировка, быстрый монтаж и демонтаж.
Наши Преимущества:
Доставка
Монтаж административного здания
Лизинг
Помните, что вы выбрав административное здание модульного типа, смонтированное на базе качественных блок контейнеров, Вы всегда можете дополнить уже готовое сооружения, сделать надстройку или заказать перепланировку помещения. Современные модульные здания позволяют сделать это без лишних сложностей.
Наша компания готова спроектировать и построить модульное административное здание любой функциональной сложности и практически в любом регионе России.









































Широкая сфера применения